Gratis waardebepaling
248133196.jpg
248227224.jpg

D C Meeslaan 12

VIERPOLDERS

verkocht onder voorbehoud

Overzicht

D C Meeslaan 12 te Vierpolders

"2-onder-1-kapwoning met garage en oprit voor meerdere auto's, gelegen op een ruim perceel van 277m² eigen grond".

In een rustige woonomgeving in het dorp Vierpolders ligt deze 2-onder-1-kapwoning (bouwjaar: 1957) met aangebouwde serre, ruime garage en oprit voor meerdere auto's. Hoewel de woning enige liefde en aandacht nodig heeft zijn er diverse voorzieningen zoals zonnepanelen, airconditioning en een elektrisch bedienbare garagedeur.

Indeling begane grond:
Hal/entree met trapopgang en toiletruimte. Toegang naar de kelderruimte, ideaal voor extra bergruimte. Lichte woonkamer met houtkachel, vinyl vloerafwerking en houten schuifpui naar de serre.
De keuken bevind zich in de aanbouw en is voorzien van een eenvoudig keukenblok met fornuis en Daalderop close-up boiler. Vanuit de keuken is er toegang tot de serre.
De serre is uitgevoerd met dubbele beglazing en zadeldak, ideaal als eetkamer, werkruimte of ontspanningsplek met uitzicht op de tuin.

Indeling verdieping:
Overloop met toegang tot 3 slaapkamers en een badkamer.
Alle slaapkamers zijn voorzien van een vaste kast en de hoofdslaapkamer is aan de achterzijde gelegen. De eenvoudige badkamer ligt aan de voorzijde met een wastafel en doucheruimte.

Zolderverdieping:
Via een steektrap is de bevloerde vliering bereikbaar met opstelling van de cv combiketel, CO2-meter en verlichting.

Tuin:
Zowel aan de voorzijde als achterzijde is er een tuin, de achterzijde is bestraat met grindtegels.
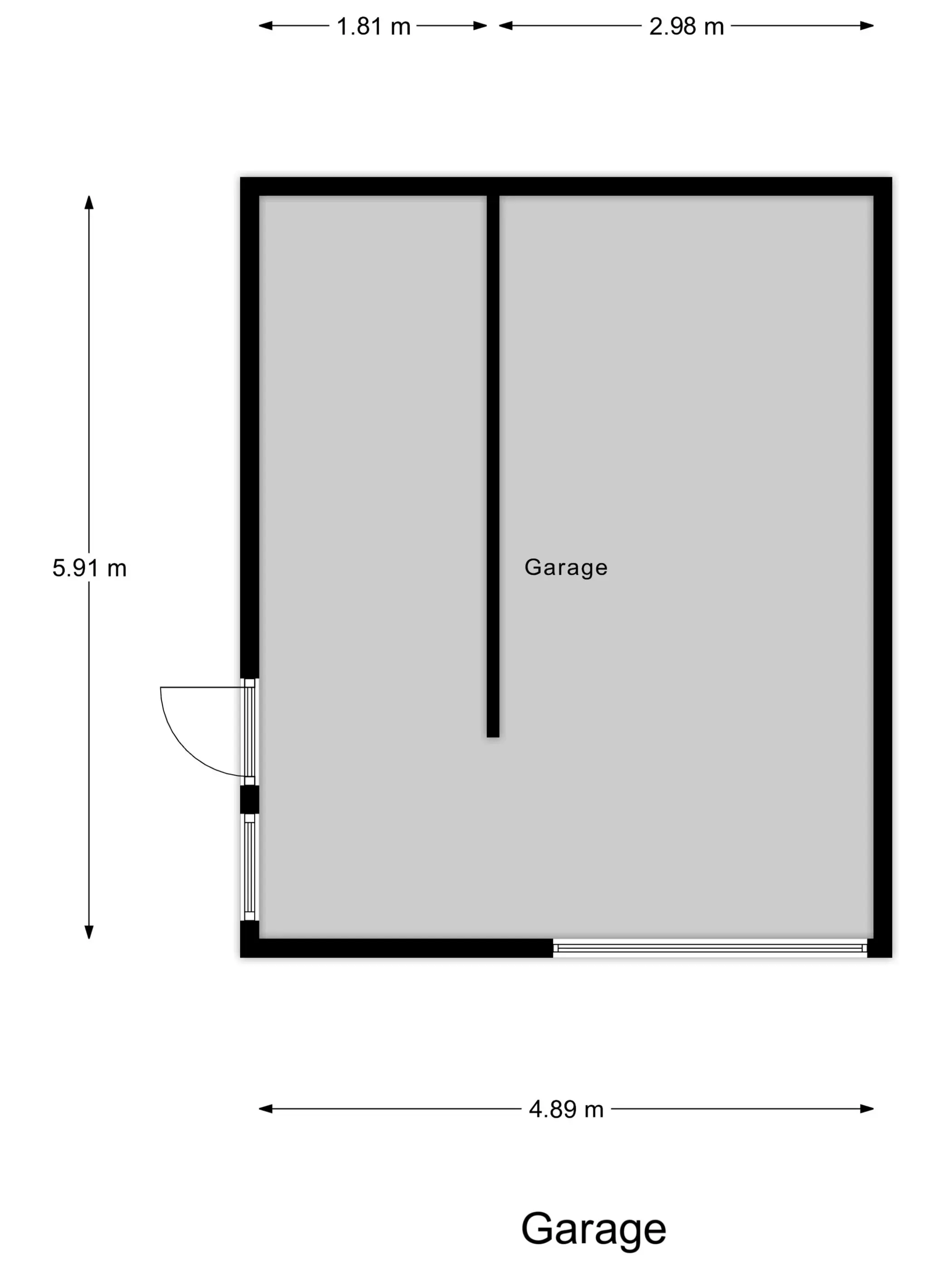
Aan de zijkant van de woning is de oprit met plaats voor 3 auto's. De ruime garage beschikt over elektra, wateraansluiting en elektrisch bedienbare kanteldeur. Achter de garage bevind zich een overkapping, ideaal voor fietsen, tuingereedschap of houtopslag.

Afmetingen:
Woonkamer: 6,61 x 5,15m
Keuken: 2,85 x 2,21m
Badkamer: 1,56 x 1,25m
Serre: 2,77 x 3,80m
Slaapkamer a.z.: 2,01 x 3,49m
Slaapkamer v.z.: 2,92 x 3,49m
Slaapkamer v.z.: 2,43 x 2,98m
Garage: 5,91 x 4,89m

Bijzonderheden:
-Een ouderdomsclausule, asbestclausule en een niet zelfbewoningsclausule zullen worden opgenomen in de koopovereenkomst.

Een ideale woning voor kopers die bereidt zijn om de handen uit de mouwen te steken en dit tot hun thuis te maken, er zijn mogelijkheden genoeg op dit ruime perceel!
Hierbij nodigen wij u graag uit voor een vrijblijvende bezichtiging.
Lees meer
Interesse in deze woning?

Neem contact met ons op!

Plan een afspraak in

Kenmerken

Overdracht

Vraagprijs
€ 365.000,- k.k.
Status
verkocht onder voorbehoud
Aanvaarding
in overleg

Bouw

Soort woning
woonhuis
Soort woonhuis
eengezinswoning
Type woonhuis
twee onder een kapwoning
Aantal woonlagen
3
Bouwvorm
bestaande bouw
Bouwjaar
1957
Huidige bestemming
woonruimte
Onderhoud binnen
redelijk
Onderhoud buiten
redelijk
Voorzieningen
buitenzonwering, airconditioning, rookkanaal, zonnepanelen, natuurlijke ventilatie
Isolatie
gedeeltelijk dubbel glas

Energie

Energielabel
F
Verwarming
cv ketel
Warm water
cv ketel
C.V.-ketel
combi-ketel van Nefit, eigendom

Oppervlakten en inhoud

Woonoppervlakte
87 m²
Perceeloppervlakte
277 m²
Inhoud
352 m³
Bergruimte oppervlakte
29 m²

Indeling

Aantal kamers
4
Aantal slaapkamers
3

Buitenruimte

Ligging
in woonwijk
Tuin
achtertuin met een oppervlakte van 62 m² en is gelegen op het noordoosten

Garage / Schuur / Berging

Garage
garagebox
Parkeergelegenheid
op eigen terrein
Lees meer

Een afspraak
maken?